Apartmány Javorská - Garážová stání a sklepy - přízemí
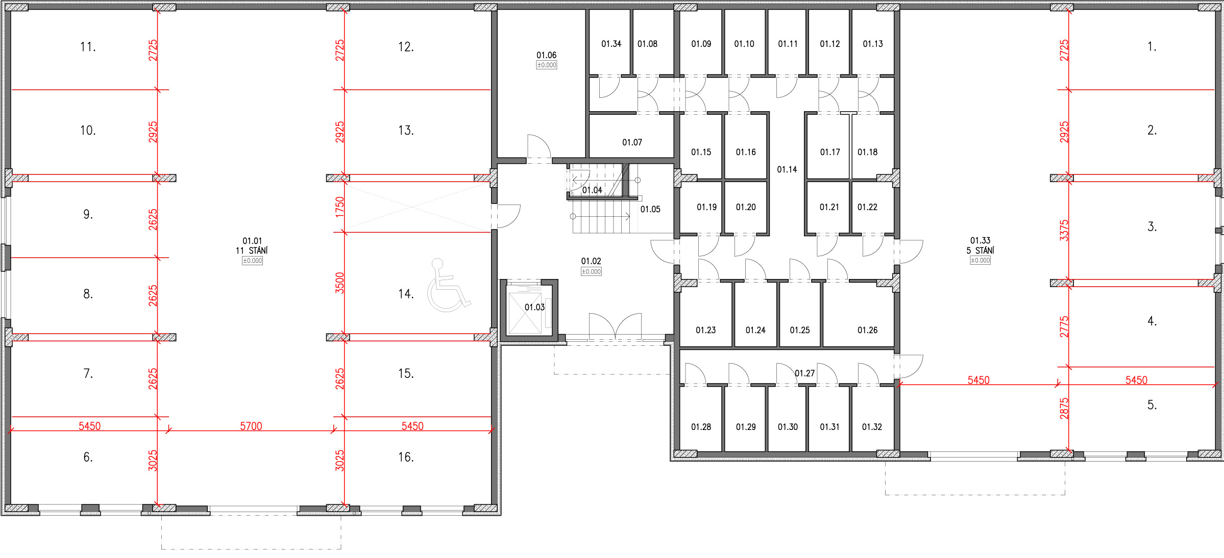
V přízemí vznikne 16 garážových stání s vnitřním vstupem do objektu. Každý byt má také vlastní sklepní kóji.
Garážová stání jsou přidělena ke konkrétním bytům, viz detail jednotlivých bytů.

V přízemí vznikne 16 garážových stání s vnitřním vstupem do objektu. Každý byt má také vlastní sklepní kóji.
Garážová stání jsou přidělena ke konkrétním bytům, viz detail jednotlivých bytů.
